Schule Meinisberg
Eine in die Jahre gekommene Schulanlage in einer kleinen Schweizer Gemeinde wird erneuert und erweitert: Der Kopfbau in Holzbauweise verleiht ihr eine neue Identität.
Eine Aufgabe, wie sie immer wieder gestellt wird: Ein Bestandsbau aus den 50er-Jahren entspricht nicht mehr den heutigen Platzbedürfnissen und pädagogischen Ansprüchen. Die Schule platzt aus allen Nähten und muss schleunigst vergrössert werden.
Skop gewinnt 2019 das Planerwahlverfahren, welches ursprünglich auch ein kleines Gemeindehaus für die bisher im Schultrakt integrierte Gemeindeverwaltung vorsah und dem Dorf, zusammen mit dem Feuerwehrhaus, ein prägnantes Zentrum beschert hätte. Das Gesamtprojekt fiel jedoch lokalpolitischen Auseinandersetzungen zum Opfer. Die Schulhauserweiterung selbst wurde 2022 vom Stimmvolk deutlich angenommen.
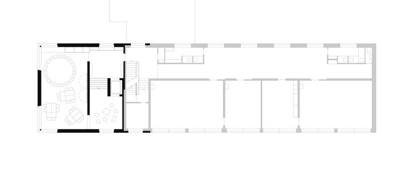
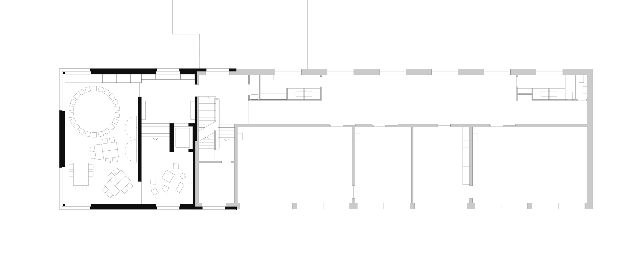
Der neue Kopfbau macht aus der Not eine Tugend: Die Grunddisposition mit der um ein halbes Geschoss versetzten Eingangsebene wird auf die darüberliegenden Gruppenräume übertragen. Diese liegen ein paar Stufen über den Hauptebenen und zeichnen sich so als ruhige Orte des Rückzugs aus. Der Kindergartenbereich im Tiefparterre wiederum profitiert von einer kleinen Aussenarena, welche zwischen dem Innenraum und der Umgebung vermittelt. Neben den drei Unterrichtseinheiten befindet sich im Dachraum ein grosszügiges Lehrpersonenzimmer mit angehängter Mediathek. Der neue, zentral positionierte Lift bedient alle Ebenen und macht die Schule hindernisfrei.
Erstellt wurde die Erweiterung konsequent in Holzbauweise. Sogar der Liftschacht. Im Altbau beschränkte man sich auf minimale Eingriffe zur Unterbringung von Gruppenräumen und Einhaltung von Normen, u.a. wurde das bestehende Treppenhausgeländer erhöht. Das Solardach sorgt schliesslich für eine nachhaltige Energieversorgung.
TEAM SKOP
Cécile Baumann, Nicholas Frei, Basil Spiess, Silvia Weibel Hendriksen, Martin Zimmerli
AUFTRAG
Verfahren
1. Rang, Planerwahlverfahren
Jahr
Wettbewerb 2019, Projektierung 2019-22, Realisierung 2023-24
Bauherrschaft
Einwohnergemeinde Meinisberg
FACHPLANUNG
Bauleitung, Kosten- und Terminplanung
Spörri Graf Partner / APP AG
Tragwerk Holz
Timbatec Holzbauingenieure Schweiz AG
Tragwerk Massivbau
WAM Planer und Ingenieure AG
Haustechnik HLS
enerconom AG
Elektroplanung
A. Schlosser AG
Bauphysik
Weber Energie und Bauphysik AG
GEBÄUDEDATEN
Nutzung
Primarschule und Kindergarten
Adresse
Hauptstrasse 45, 2554 Meinisberg, Schweiz
Gebäudevolumen
3’361 m³
Geschossfläche
895 m²
Bausumme
CHF 3.79 Mio. (BKP 1-9)
CHF 3.36 Mio. (BKP 2)
PUBLIKATIONEN
→ Neues Gesicht für das Dorfzentrum, Bieler Tagblatt, 25.08.2020
→ Kopfbau gibt Schule eine neue Identität, Grenchner Tagblatt, 03.03.2022
→ Meinisberg: Schulhaus wird erweitert, Bieler Tagblatt, 31.03.2022










